Rénovation complète d’une échoppe
Ce projet consiste en la rénovation profonde d’une échoppe. La réceptivité de la maitrise d’ouvrage à l’approche projectuelle de l’agence nous permet de mettre en oeuvre les méthodes de conception architecturales auxquelles nous croyons sans limiter notre engagement. Ainsi, pour des raisons économiques, la maitrise d’ouvrage choisit de réaliser certains éléments en autonomie afin de pouvoir obtenir un projet sans compromis sur les aspects qui nous sont chers, tout comme à eux : la conception bioclimatique, le choix des matériaux, l’aboutissement du projet par l’apport de mobilier sur mesure.
Localisation : Bordeaux
Phase: Livré en Avril 2024
Surface: 105m2
Budget: 175k
Programme: Logement

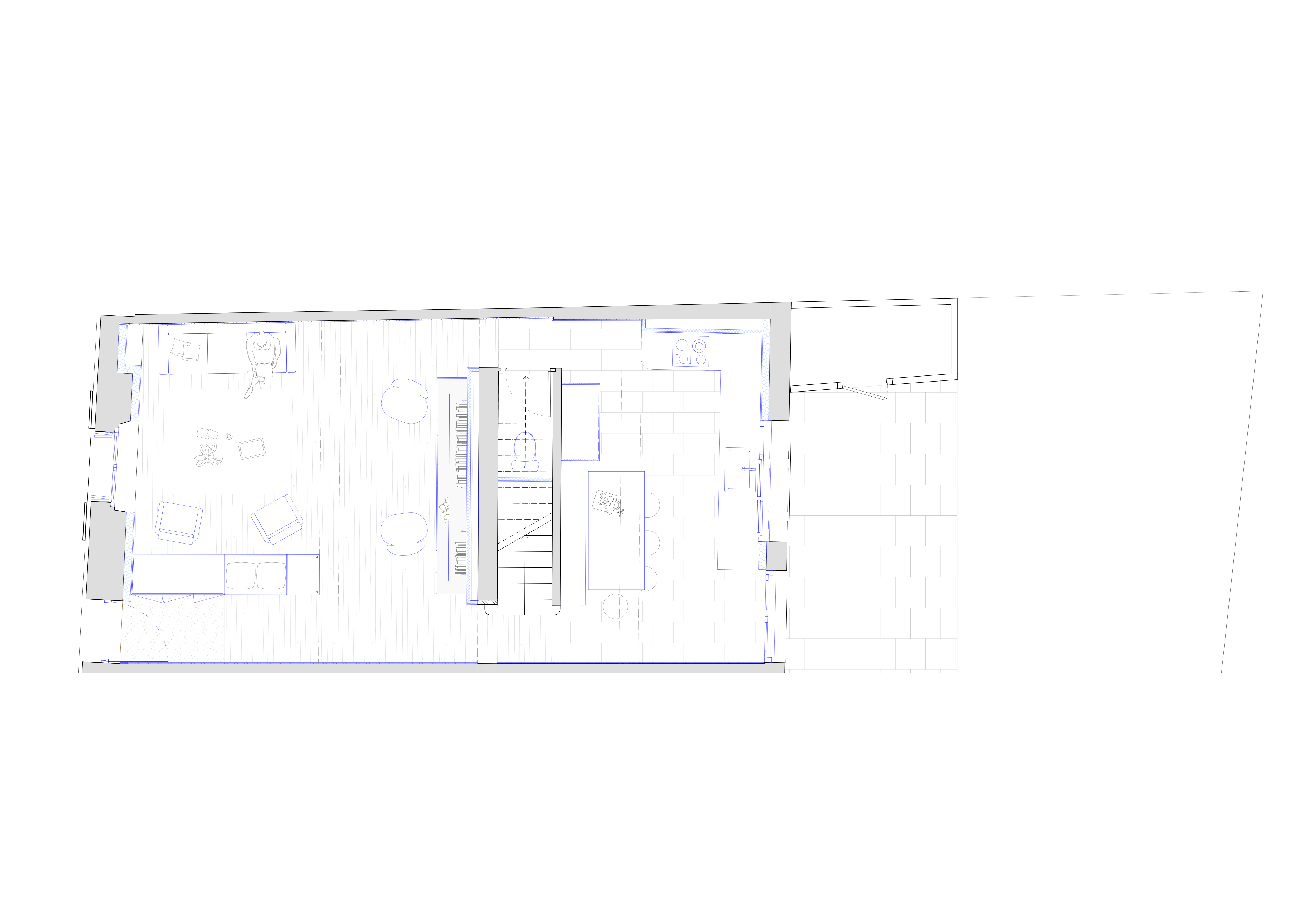
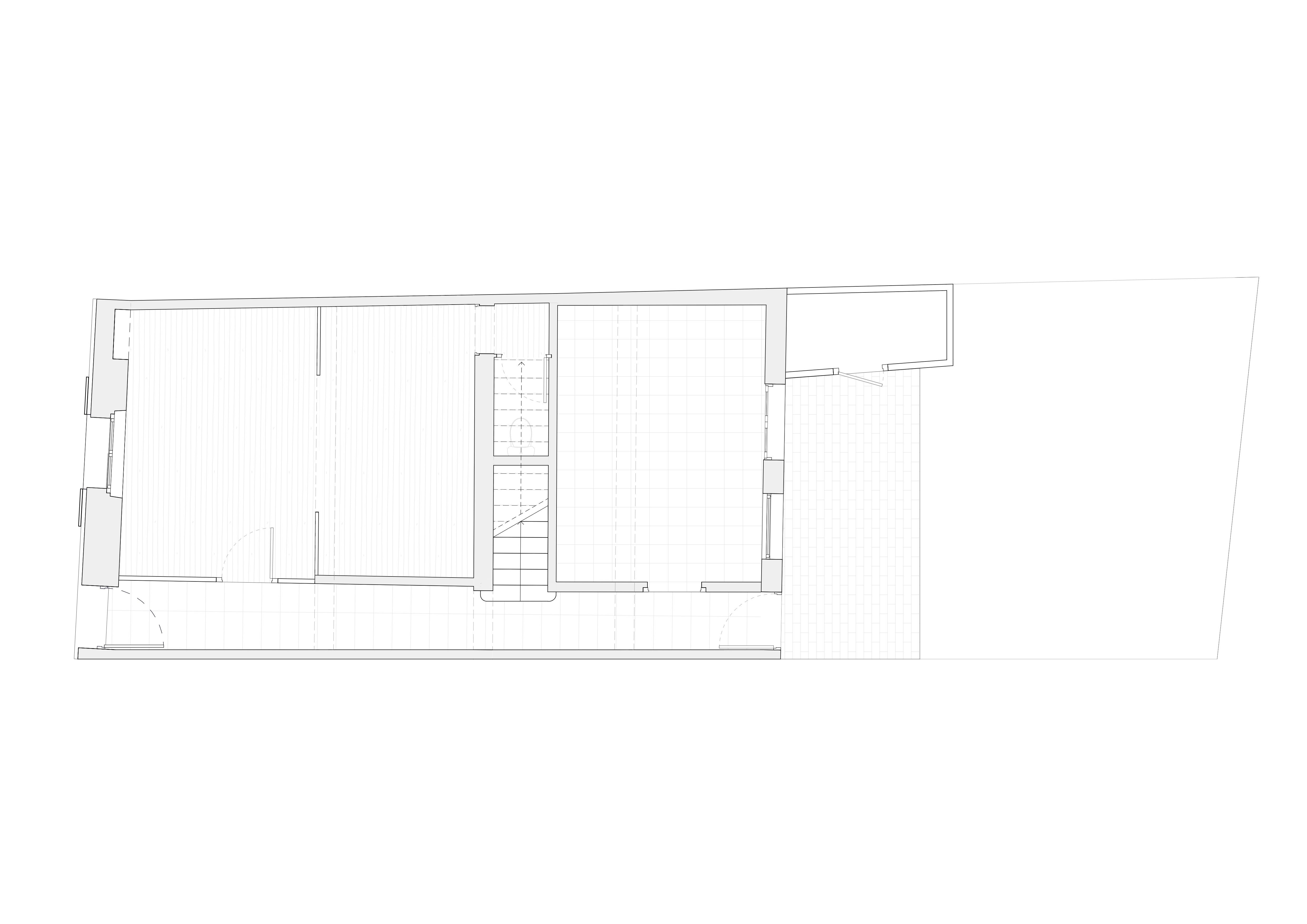
Le dessin du plan est épuré afin de fluidifier au maximum les circulations entre les espaces.
La façade arrière est retravaillée pour amener de la lumière dans des espaces initialement sombres et permettre qu’ils aient un nouvel usage.
Au RDC, c’est l’escalier qui délimite le salon et la cuisine, renforcé par le mobilier en chêne. Ces éléments en bois se retrouvent sous forme de panneaux, de meubles, en divers points de la maison, apportant une réelle cohérence esthétique au projet.
La maison est tout d’abord mise à nue, débarrassée des multiples couches de matériaux apportées au fil du temps et qui mettent à mal les propriétés thermiques intéressantes de la pierre existante.
Les murs mitoyens sont enduits à la chaux, apportant une matérialité chaleureuse au lieu. Les murs de façade sont isolés en coton afin de privilégier les matériaux biosourcés. Dans une logique bioclimatique, une fenêtre de toit est ajoutée au-dessus de l’escalier, afin de permettre une ventilation naturelle.
Le sol de l’étage est conservé tandis que le carrelage de la cuisine est remplacer par de vrais carreau de gironde en terre cuite, connu également pour leur perspicace et hygrométrie.

Bioclimatique
Le projet complet a été pensé pour remettre à jour cette échoppe et la rendre plus saine. Les murs pierre dénudés de leurs enduits ciments et ré-enduit à la chaux pour lui permettre de respirer. L’isolation naturelle sur les façades non mitoyennes pour assurer une bonne inertie et un confort thermique.
Tous les matériaux utilisés en finition de sols intérieurs avaient pour cahier des charges d’être naturels et de laisser respirer la maison.
Sur tout le projet, l’objectif a été de sublimer ce qui était existant et revalorisable et d’ajouter des améliorations en solutions naturelles quand elles étaient pertinentes.



















