TREYERAN
Surélévation d’une maison
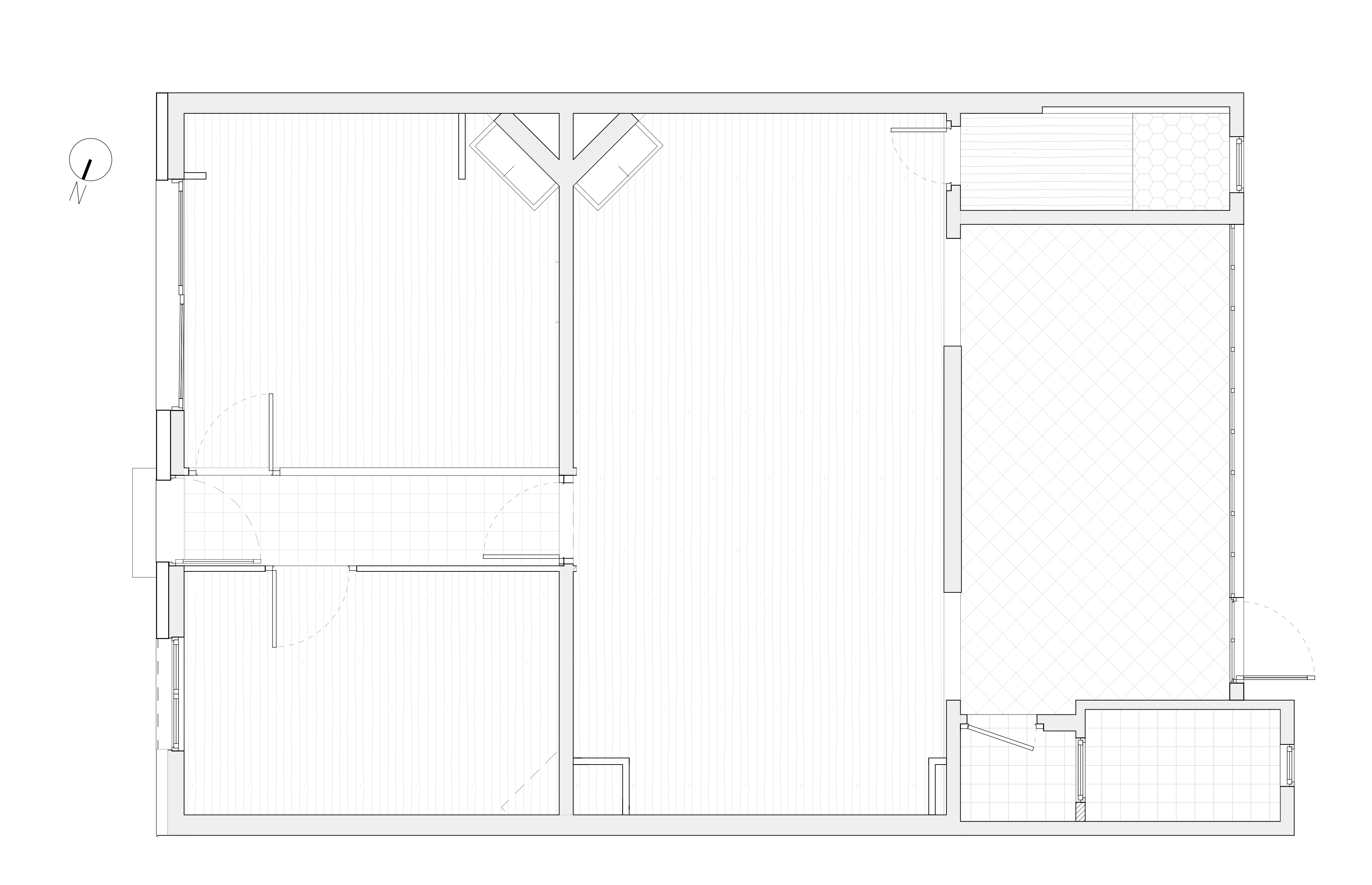
Cette intervention concerne la transformation complète d’une maison de ville protégée, dans un tissu urbain dense, jamais rénovée auparavant. L’objectif du projet est double : améliorer la qualité spatiale du logement existant et accompagner l’évolution de la cellule familiale par la création d’un étage supplémentaire.
Localisation : Bordeaux
Phase: Chantier livré en juin 2025
Surface: 130m2
Budget: 250k
Programme: Logement
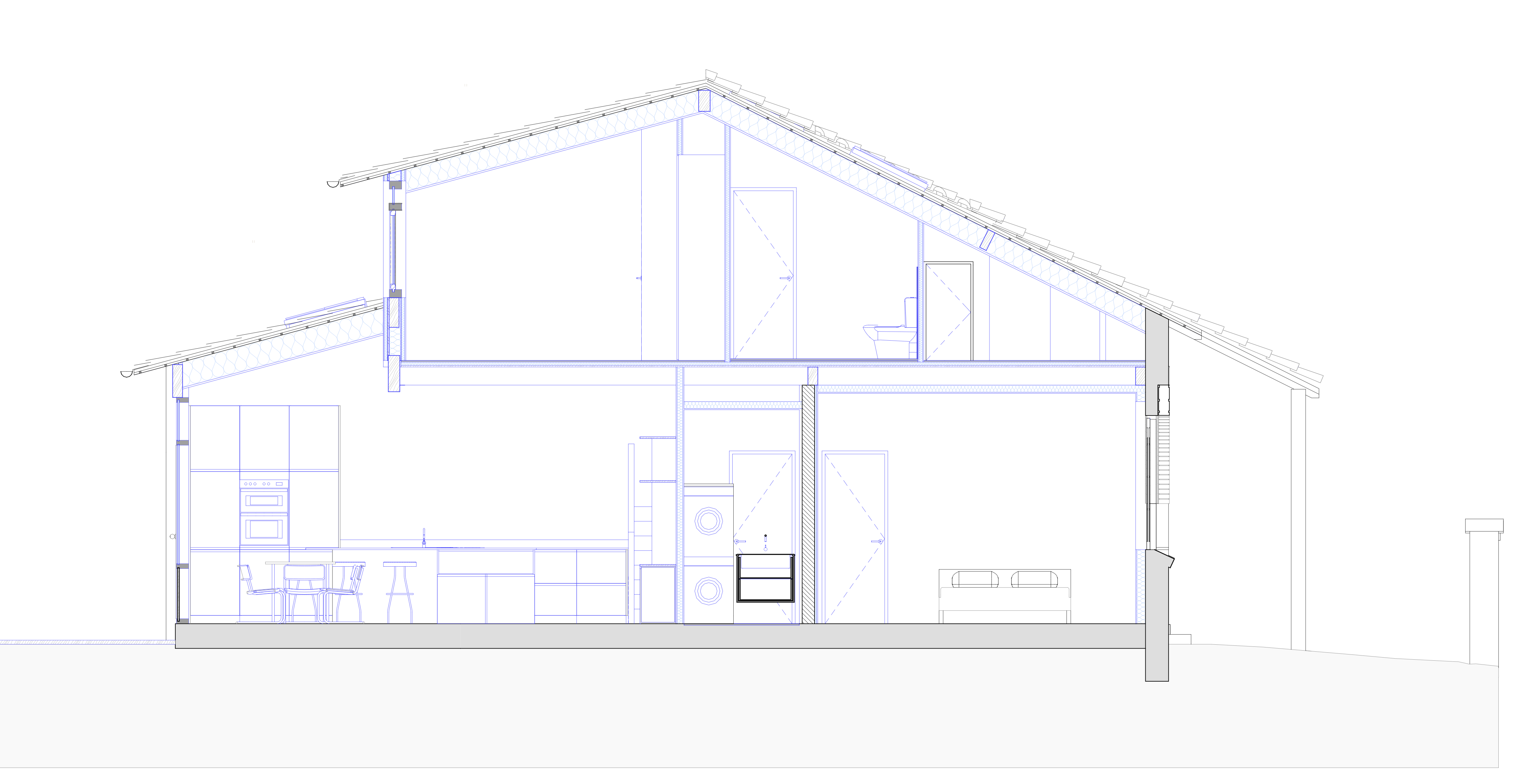
La surélévation, entièrement réalisée en structure bois, est isolée par l’extérieur en fibre de bois et enduite à la chaux, selon des principes bioclimatiques et respectueux du bâti ancien. La façade arrière est largement ouverte grâce à de grandes menuiseries bois, permettant un apport généreux de lumière naturelle. Le plancher en bois massif laissé apparent participe à une atmosphère chaleureuse et continue.
Le projet vise à créer des volumes lumineux, ouverts et traversants, en rupture avec l’état initial très compartimenté et sombre. Le nouvel étage, dédié aux enfants, offre des espaces généreux et fonctionnels, adaptés à leur quotidien.
Une attention particulière a été portée à l’intégration du mobilier sur mesure : banc d’entrée avec rangements pour les chaussures, bibliothèque multifonctions, escalier intégré à la cuisine… Chaque élément a été pensé en lien direct avec les usages de la famille, dans une logique de simplicité, de fluidité et de durabilité.
L’ensemble du projet repose sur le choix de matériaux naturels, sobres et doux, contribuant à une architecture sensible, ancrée dans son temps et attentive au confort de ses habitants.
Bioclimatique
Le projet de surélévation a été réfléchi en bioclimatique avec une surélévation en ossature bois, une isolation en laine de bois et une finition extérieure en enduit à la chaux. Les parois de la surélévation sont donc entièrement perspirantes. Les ouvertures sont faites coté Est pour apporter de la luminosité mais éviter la surchauffe.

















