ISPE
Construction d’une maison de vacances à ossature bois
Située en surplomb du lac de Biscarrosse et en lisière de forêt, cette maison se situe au cœur d’un site protégé, à l’emplacement d’une ancienne cabane de pêcheur sur lequel la réglementation impose une démolition et une reconstruction à l’identique en termes d’implantation et de gabarit.
Localisation : Biscarosse
Phase: Chantier démarré en 2025
Surface: 100m2
Budget: 230k
Programme: Logement

L’objectif était de transformer cette cabane de villégiature en une maison principale confortable, pérenne et respectueuse de son environnement. Le projet s’inscrit dans le respect des codes architecturaux du quartier d’Ispe – toitures en monopente orientées vers le lac propres aux constructions des années 1970 – tout en retrouvant l’essence d’une cabane en bois, sobre et chaleureuse.
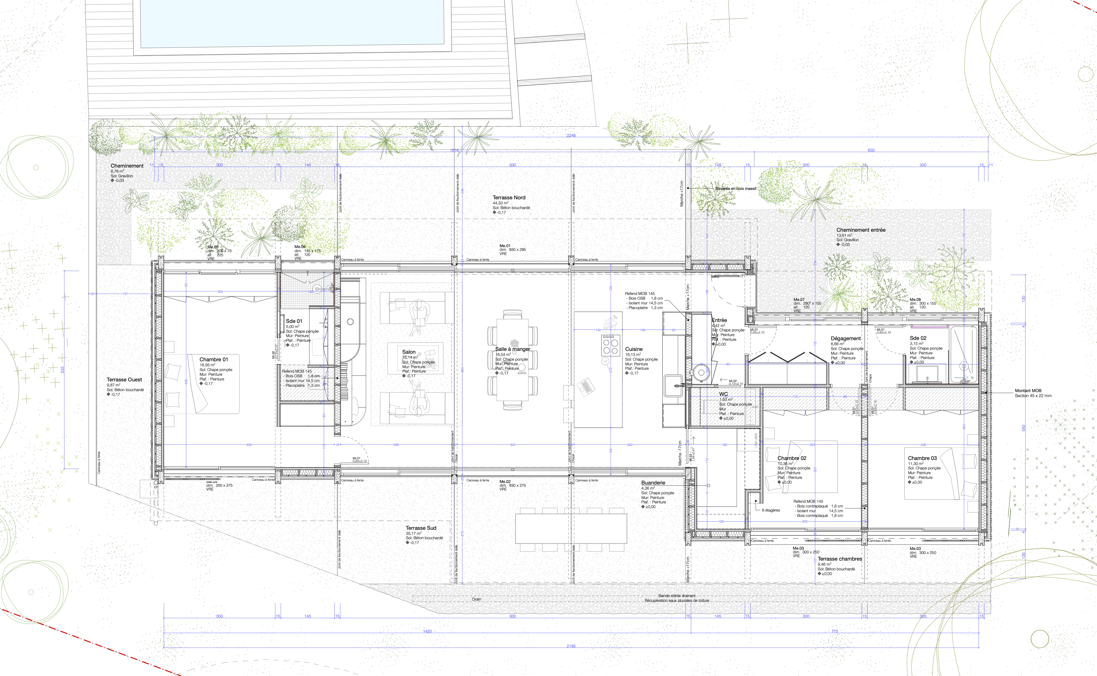
L’accès à la parcelle se fait par le nord. La maison, située au sommet d’une butte, conserve son implantation d’origine. L’entrée s’ouvre sur un grand volume traversant, qui abrite le séjour : un espace entièrement vitré, ouvert d’un côté sur la forêt, de l’autre sur le lac. Cet espace central articule l’ensemble du plan. Il accueille une cuisine ouverte et dessert deux ailes distinctes : d’un côté, l’espace nuit des enfants, légèrement en contrebas, de l’autre, une suite parentale. Cette dissociation répond à un usage saisonnier et permet d’optimiser les besoins en chauffage.
Le plan repose sur une trame de 3 mètres, rythmée par deux demi-trames techniques encadrant le séjour. La première intègre l’entrée, les WC et la buanderie et dessert la cuisine et les chambres des enfants. La seconde, accueille la salle de bain et le dressing de la suite parentale, assurant une transition avec le séjour.
La matérialité du projet renforce son intégration paysagère : la maison est entièrement construite en ossature bois, isolée en laine de bois, avec un bardage bois vertical et une toiture en zinc à mono pente. Le sol intérieur est recouvert d’un terrazzo minéral, choisi pour assurer une continuité avec le sol extérieur. L’ensemble s’ouvre sur le paysage grâce à de grandes baies vitrées.
Les avants-toits sont soigneusement étudiés : réduits au niveau du salon pour maximiser l’apport solaire et respecter l’emprise au sol, ils s’élargissent au niveau de la cuisine et de la salle à manger pour off rir un confort d’usage et une protection solaire adaptée. Les façades latérales sont plus fermées, avec des pignons en ossature bois pleine. Côté lac, le bardage vient fi ltrer certaines ouvertures pour préserver l’intimité des espaces.

















