PLACE DU PALAIS
Rénovation complète d’un appartement
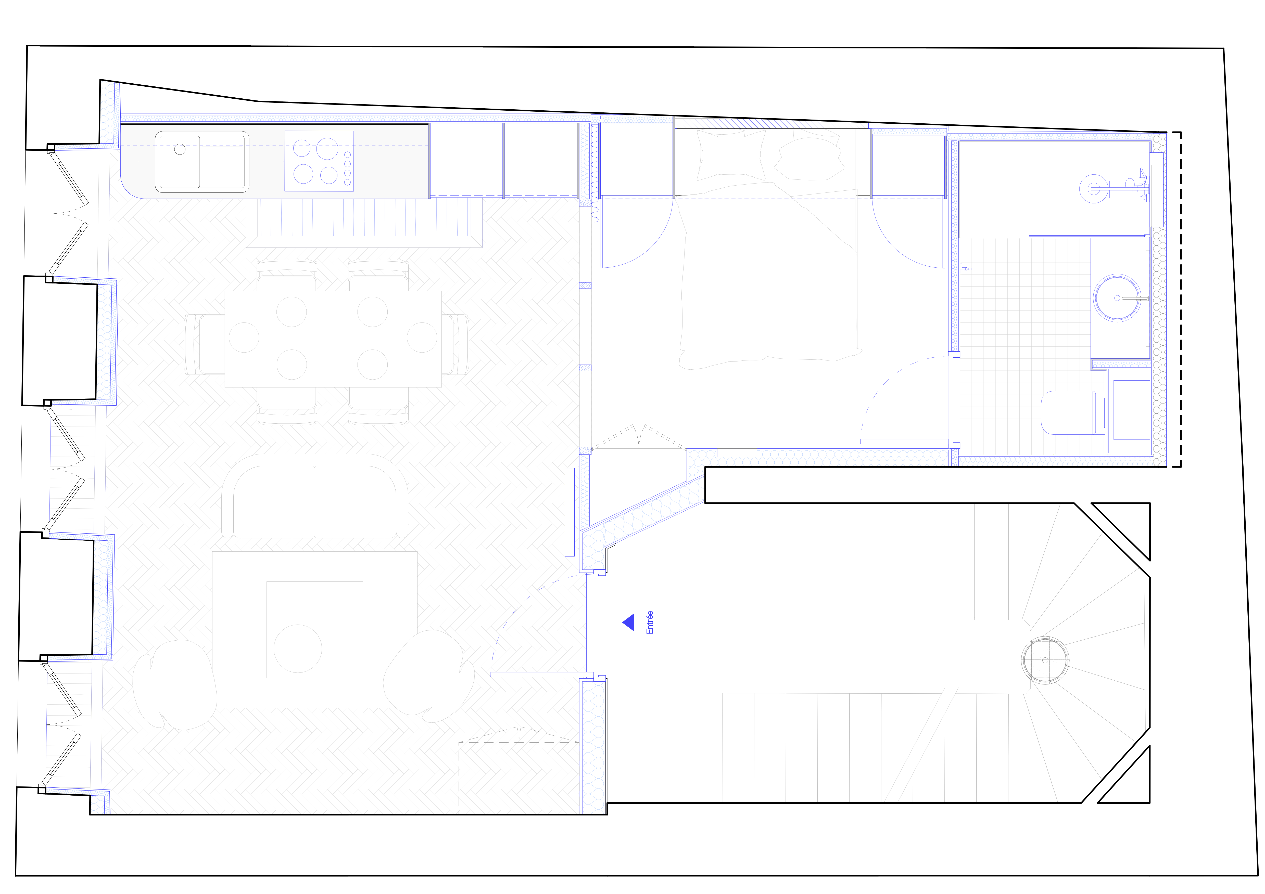
Situé dans le secteur sauvegardé de Bordeaux, cet appartement vétuste et délaissé, profondément remanié au fil du temps, présentait de nombreuses pathologies. Monoorienté sur la place du Palais, il profite d’un balcon filant et de trois grandes ouvertures donnant sur l’un des panoramas emblématiques de la ville. Mais sa grande profondeur imposait une succession de pièces aveugles, limitant la qualité d’usage et de lumière naturelle.
Localisation : Bordeaux
Phase: Livré en Avril 2025
Surface: 36m2
Budget: 150k
Programme: Logement
Avec notre cliente, une jeune interne en médecine sensible à une architecture sobre et respectueuse, nous avons engagé une rénovation complète en accord avec notre philosophie : dépouiller pour révéler, transformer avec justesse.
L’ensemble de l’appartement a été entièrement curé : doublages, faux plafonds, sols superposés — parfois jusqu’à quatre couches — ont été déposés pour retrouver les structures d’origine. Ce travail de mise à nu a permis de révéler la qualité initiale de certains matériaux, notamment le parquet en chêne en chevrons, soigneusement restauré après avoir été extrait de ses multiples recouvrements.
Le parti pris spatial est volontaire et assumé : libérer l’une des trois fenêtres de la façade, initialement affectée à une chambre, pour agrandir le séjour. Ce choix rend à la pièce de vie une échelle juste, en lien avec l’ouverture sur l’extérieur et le balcon filant. La chambre est repositionnée en second jour, en retrait de la façade bruyante, accompagnée de sa salle de bain attenante pour former un ensemble intime et calme.
Les murs ont été traités selon leur état : restaurés à nu ou isolés en coton recyclé pour améliorer les performances thermiques et acoustiques. Les menuiseries PVC ont été remplacées par des fenêtres bois à double vitrage, reprenant le dessin d’origine, renforçant l’ancrage patrimonial du projet.
Un mobilier sur mesure vient parfaire l’agencement : une verrière intérieure prolonge les rythmes de la façade dans l’espace, liant visuellement la cuisine et le séjour. Celle-ci se poursuit jusqu’au rangement intégré de la chambre, garantissant une cohérence d’ensemble, tant spatiale que matérielle.













