TABANAC
Extension + Restructuration – TABANAC
Le projet consiste à agrandir la petite maison de cette parcelle, où on retrouve un ensemble de bâtiments appartenant à une maman et sa fille. Un beau projet familial de vie partagée ou chacun possède son espace personnel mais partage les extérieurs et surtout les vues imprenables sur la vallée et les vignes.
Phase: Chantier livré en 2023
Surface: 60m2
Budget: 165k
Programme: Logements
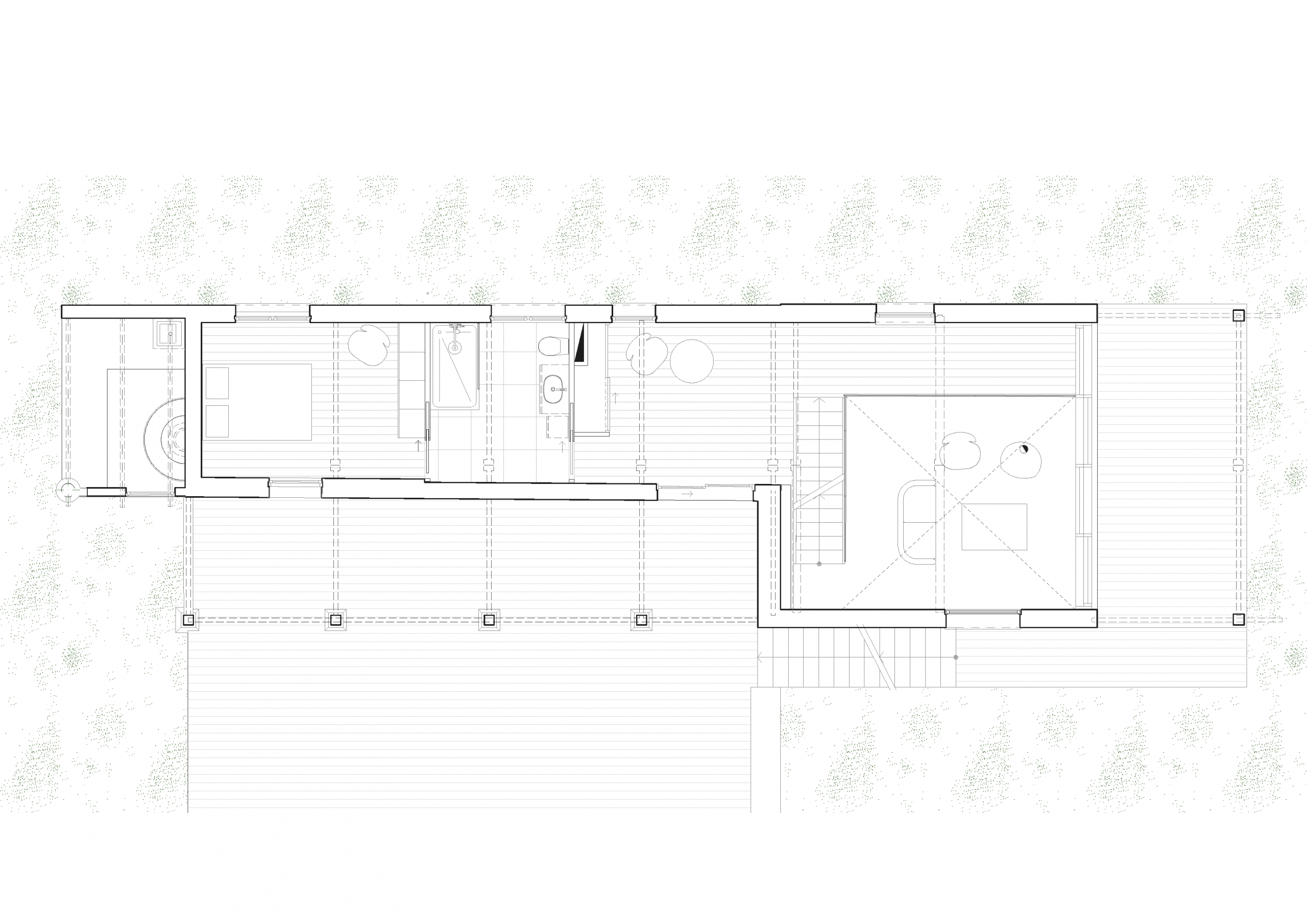
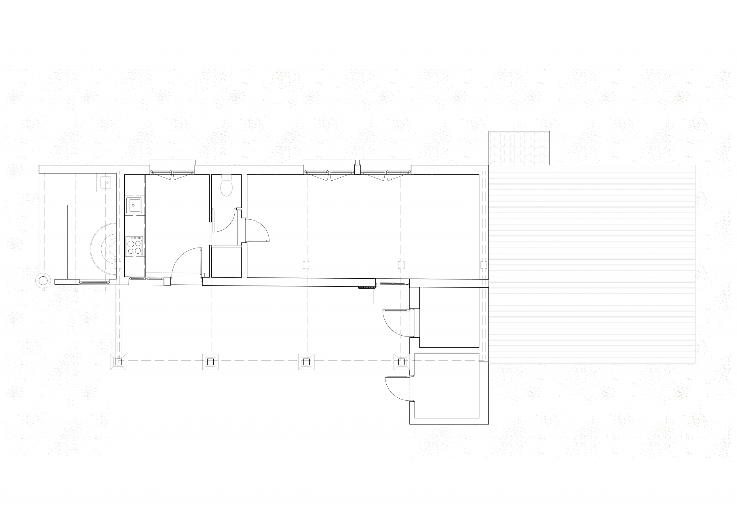
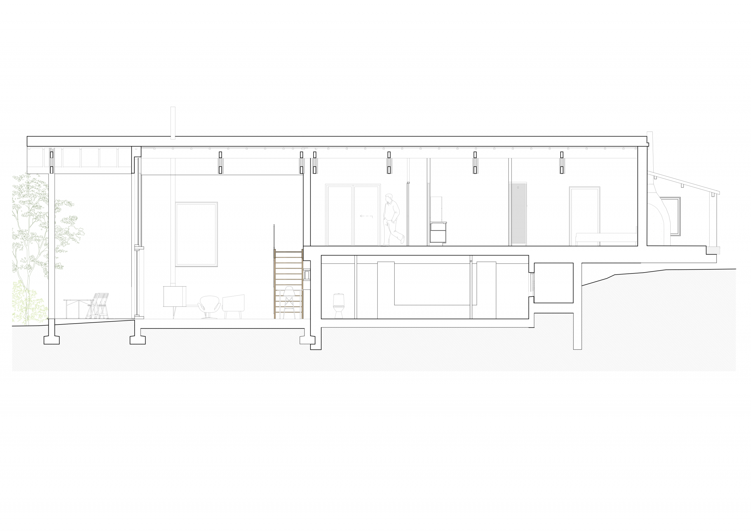
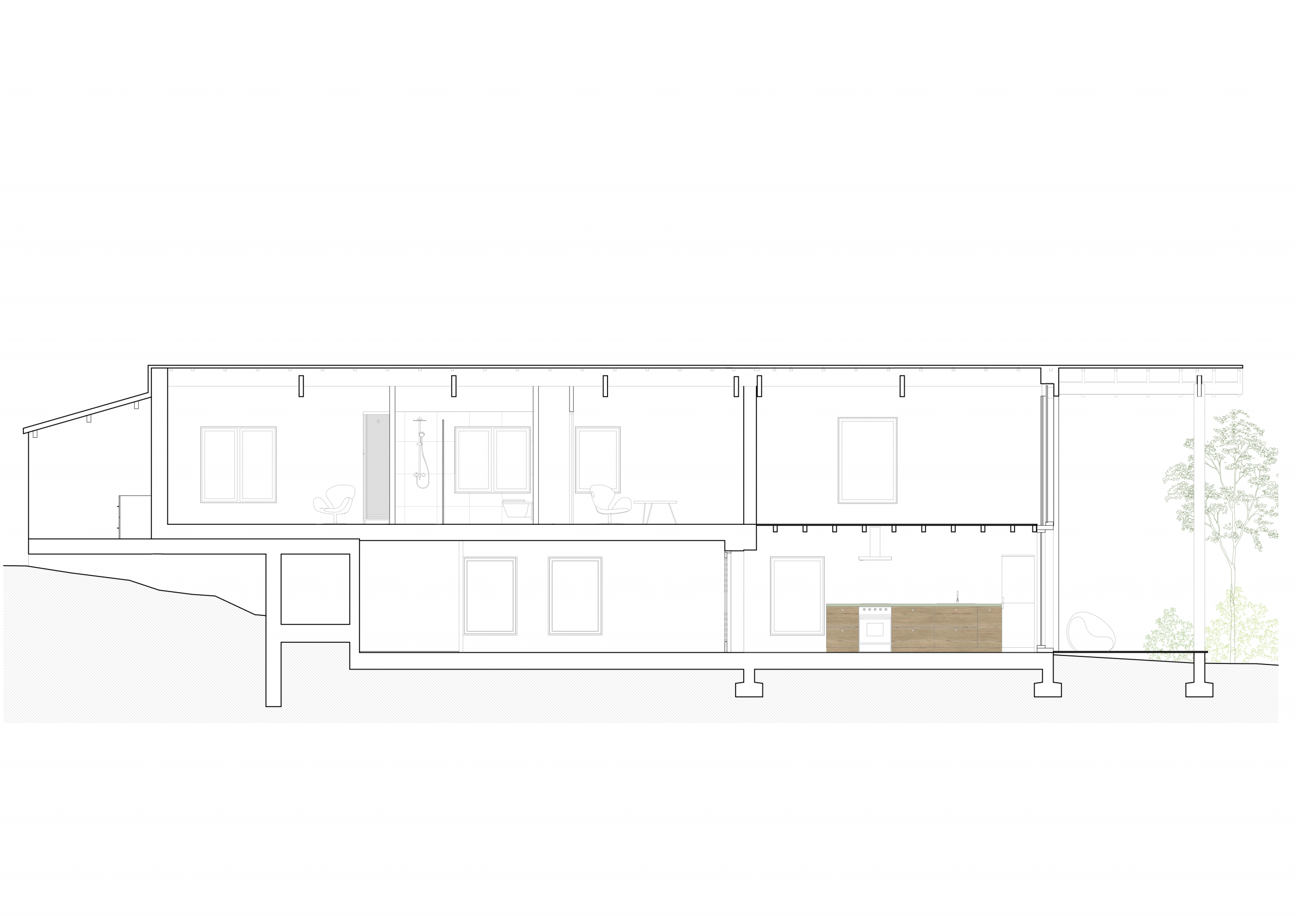
Le travail se focalise sur l’extension de la maison en face de la piscine, qui est la maison de la maman. Cette toute petite maison vient s’étendre au Sud et profite de la forte déclivité du terrain pour retrouver un grand volume du nouveau séjour.
Cette extension vers la pente du terrain permet de séparer les différents espaces extérieurs de la propriété et ainsi d’obtenir une intimité entre eux. La nouvelle terrasse du bas du terrain est l’espace de la maman. La terrasse en haut, face à la piscine est un espace partagé.
Bioclimatique
La matérialité du projet est ici très importante. L’objectif est de construire en matériaux biosourcées et géosourcées. La propriété des matériaux est mise en avant pour leurs caractéristiques dans le but de construire pour durer le plus longtemps possible tout en respectant le site du projet. L’isolation par l’extérieur de l’existant, en béton de chanvre enduit à la chaux renforce la volonté de construire intelligemment.








