SAINTE EULALIE
Surélévation + Rénovation – BORDEAUX
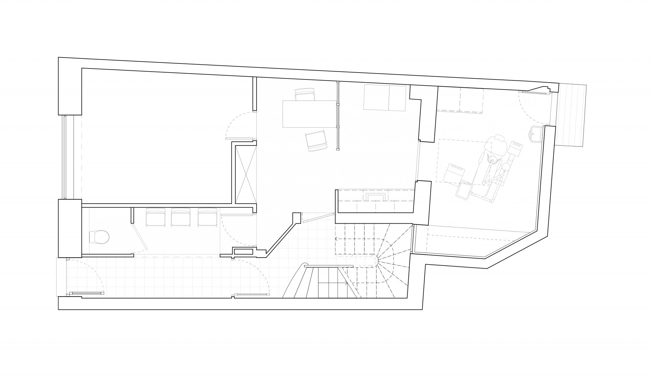
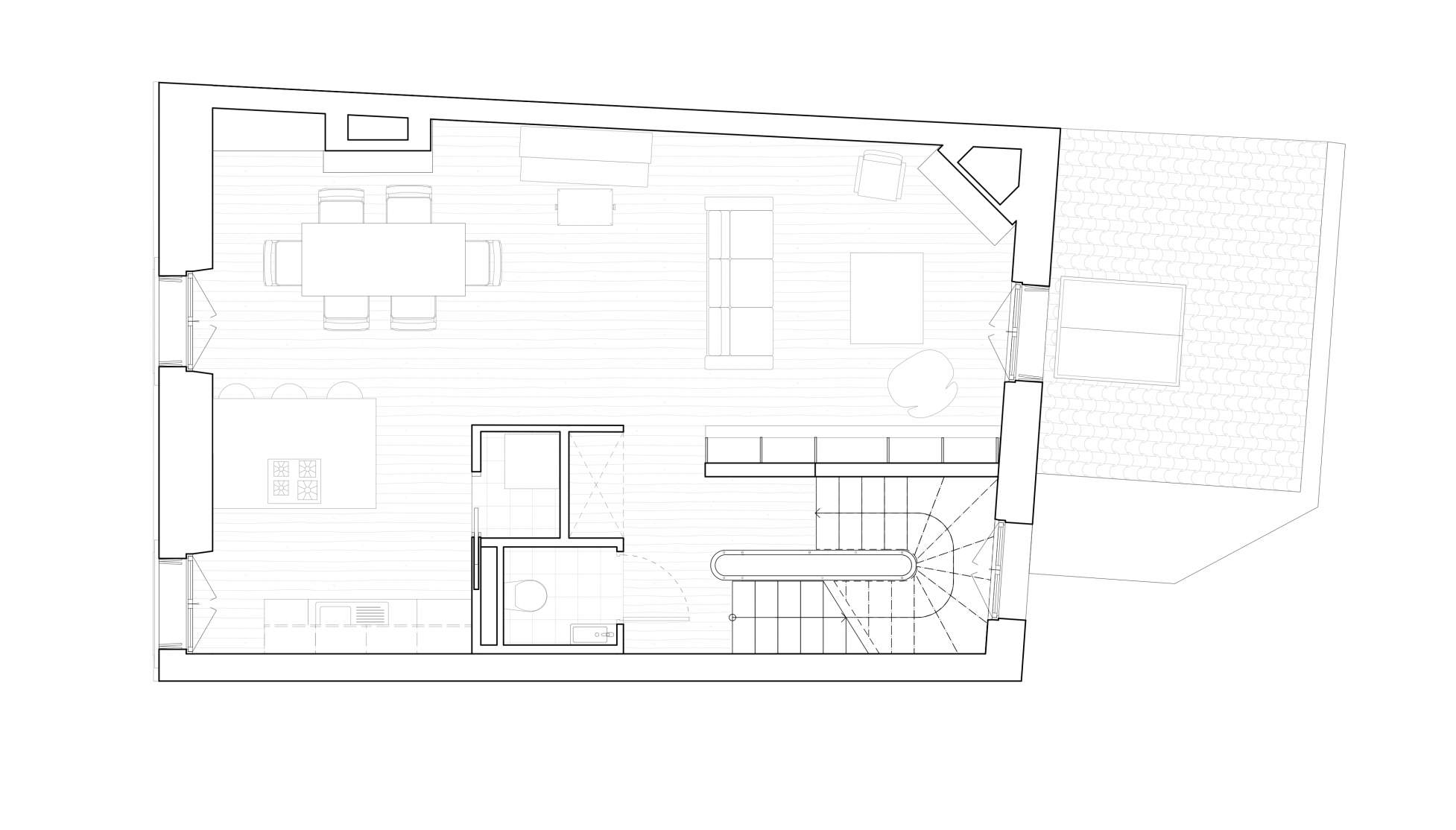
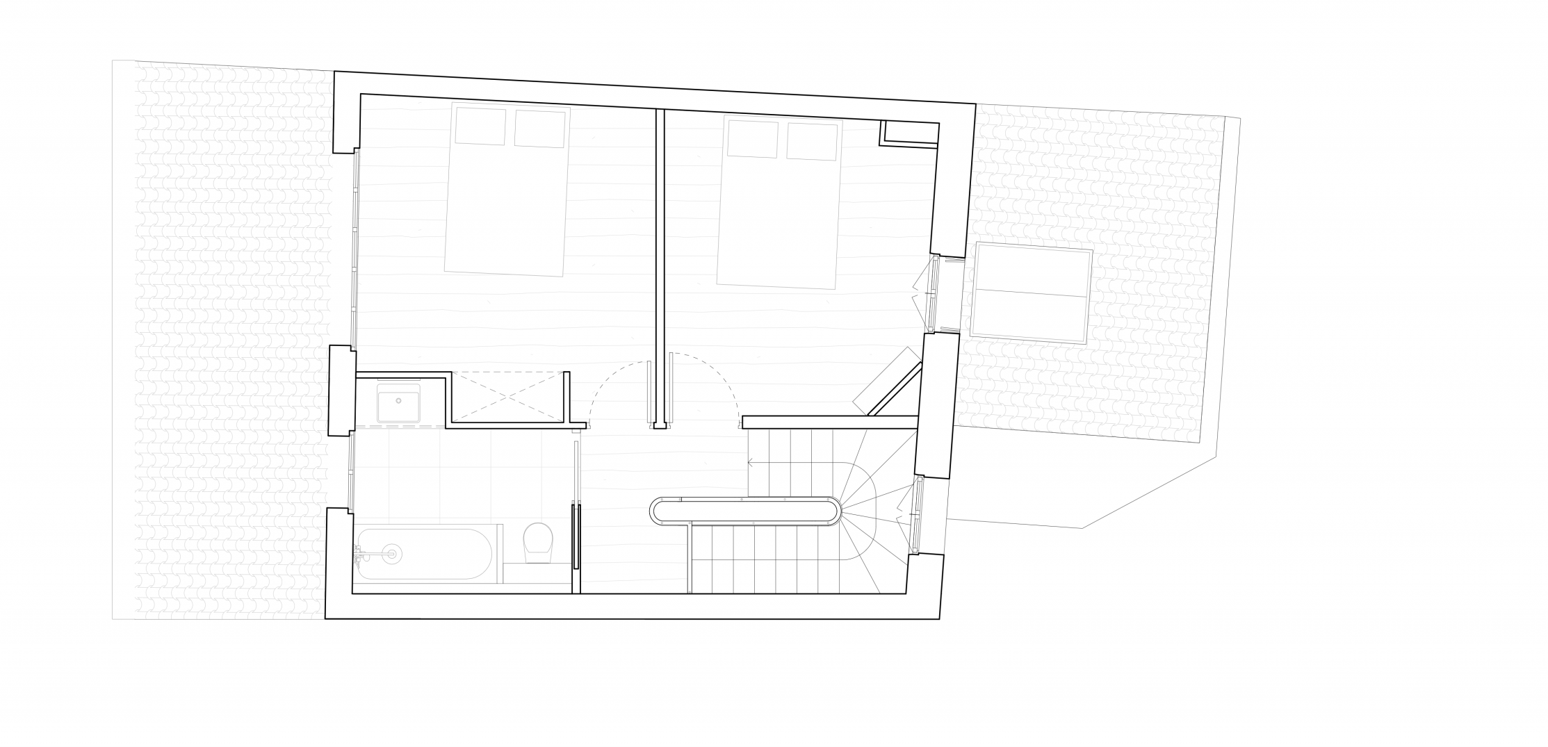
Situé face à l’une des plus belles églises de Bordeaux, l’église Sainte-Eulalie, l’immeuble à restaurer lie nombre de questions que pose la façon d’habiter en ville.
Ce programme mixte de cabinet dentaire et d’appartement se situe face à l’église sur la place Sainte-Eulalie.
Permettre les vues et l’apport de lumière naturelle sans dénaturer la façade, mais aussi, ouvrir les espaces de façon traversante pour révéler les volumes sont les enjeux de ce projet.
Il est créé à l’arrière une terrasse permettant de prolonger le séjour de l’appartement, mais également de retravailler l’apport de lumière naturelle pour le cabinet dentaire juste en-dessous, par le biais d’un shed. Celui-ci se veut également garde-corps et jardinière de la terrasse. La façade du R+2 coté rue est également refaite à neuve afin de permettre de nouvelles ouvertures, plus larges vers l’église.
Le projet est a été livré en Octobre 2022
Phase: Livré en 2022
Surface: 145m2
Budget: 125k
Programme: MIXTE – Médical & Logements
Textes en cours
Textes en cours




















