MAURICETTE
Surélévation d’un appartement
Dans le quartier des Chartrons, un petit appartement de 37 m² a été entièrement repensé pour doubler sa surface et améliorer sa qualité d’habiter.
Localisation : Bordeaux
Phase: Livré en Juillet 2022
Surface: 80m2
Budget: 100k
Programme: Logement
Collaboration : Touton Studio

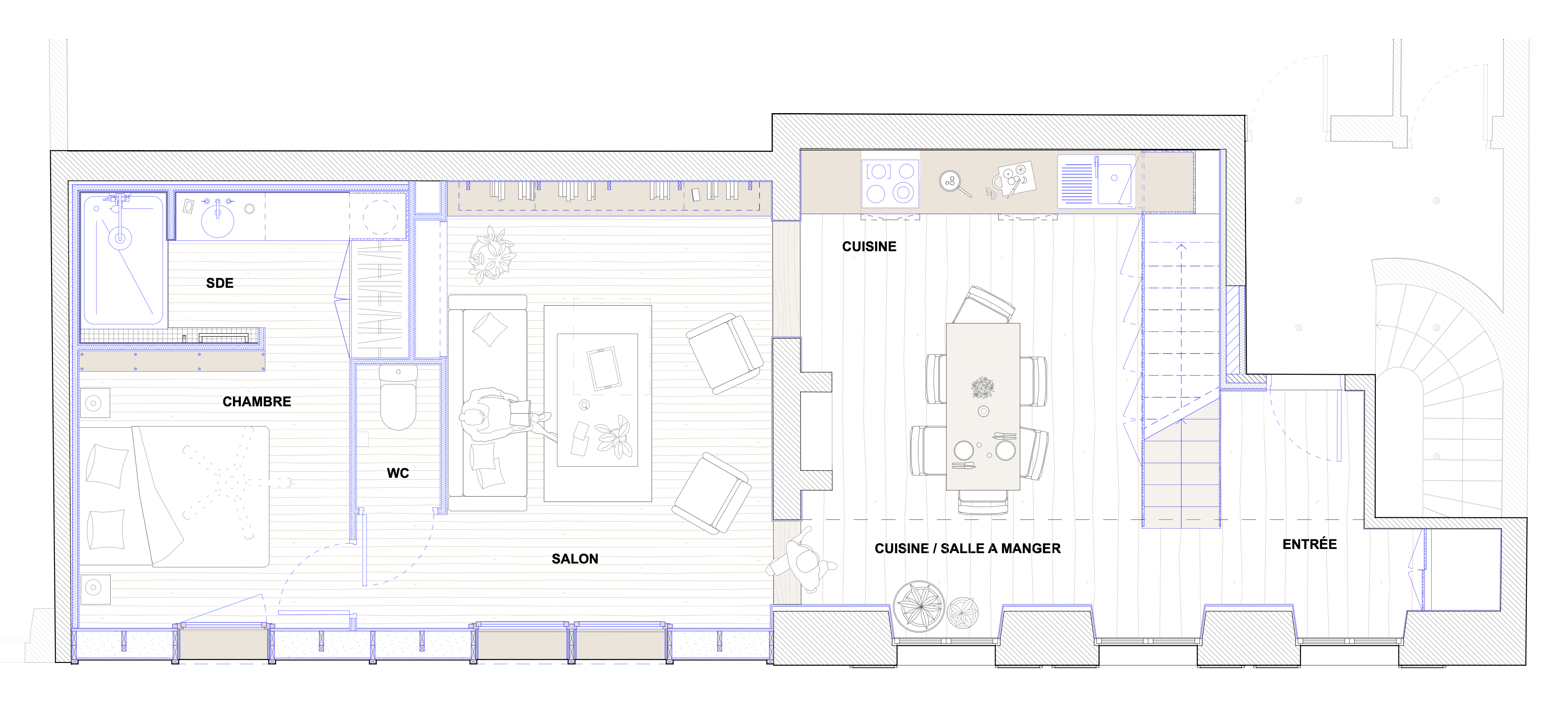
L’appartement initial se décomposait en deux volumes distincts. Le premier, caractérisé par une façade en pierre offre une généreuse hauteur sous plafond de plus de 3,20 mètres. Le second, sous rampant, ne disposait que de 7,5 m² exploitables à plus de 1,80 m de hauteur, bien que couvrant 30 m² au sol.
La surélévation s’est naturellement implantée sur ce volume bas, tandis que les combles ont été aménagés dans la partie haute pour gagner un espace supplémentaire.
La distribution des pièces a été pensée en enfilade pour favoriser une circulation fluide le long de la façade. L’entrée donne sur un escalier qui structure l’espace tout en séparant visuellement la cuisine et la salle à manger. Une cheminée traversante marque la transition vers le salon, situé dans la partie surélevée. La chambre parentale et la salle de bain prolongent cet espace. Dans la partie ancienne, les combles ont été récupérés pour y installer une chambre et un bureau.
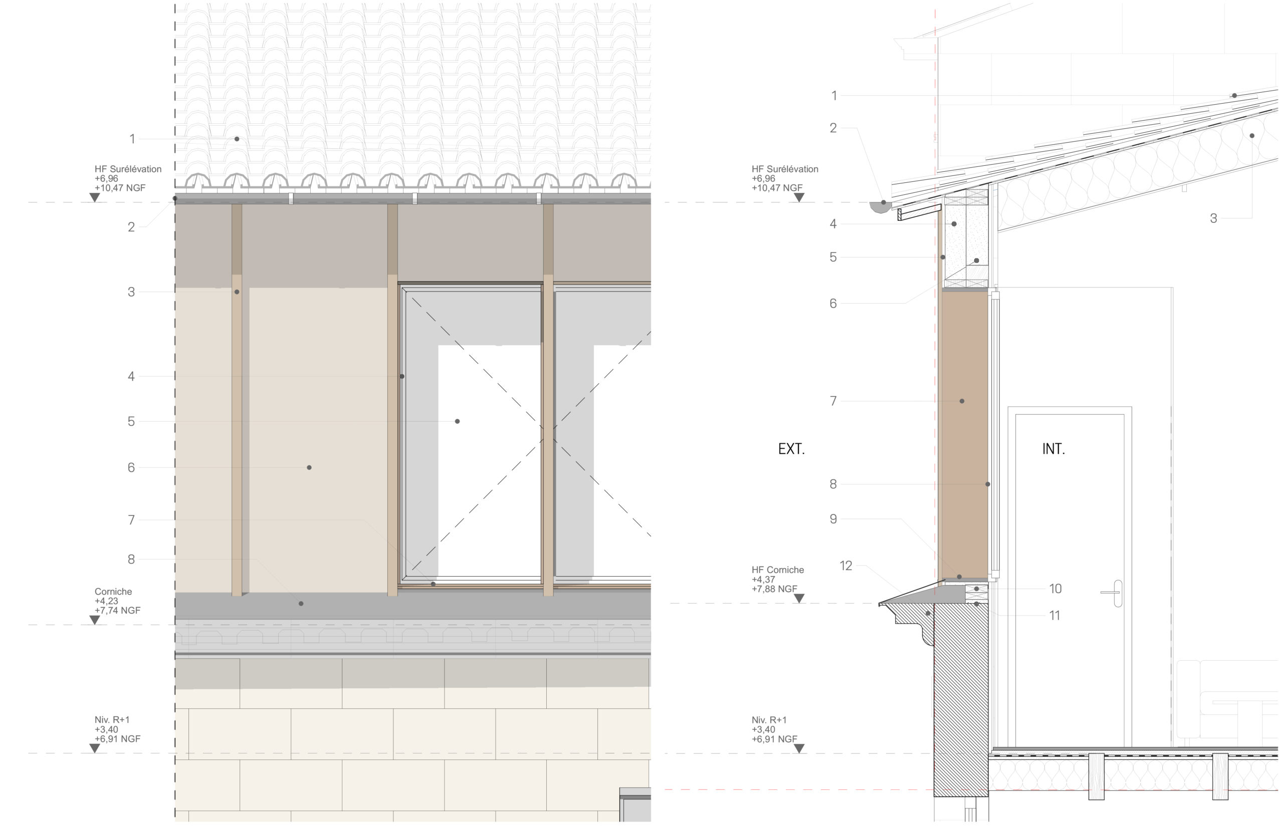
Le projet repose sur une approche bioclimatique appliquée à l’existant. L’inertie des murs en pierre est conservée et renforcée par un correcteur thermique en béton de chanvre enduit à la chaux, afin d’assurer le confort d’hiver sans compromettre la respiration du mur.
La surélévation est construite en double ossature bois, remplie de chaux-chanvre sur 28 cm d’épaisseur. L’ensemble est enduit à la chaux à l’intérieur et à l’extérieur. Ces matériaux naturels participent à l’équilibre thermique et hygrométrique du logement.
Les choix de matières et de couleurs ont été développés en collaboration avec Touton Studio. Le projet associe finitions brutes et touches colorées en clin d’œil aux origines méditerranéennes de la maîtrise d’ouvrage.
Bioclimatique
L’ensemble du projet valorise les matériaux existants : les anciennes poutres ont été réemployées en linteaux et en mobilier, le plancher d’origine a été conservé. La façade de la partie surélevée reprend les proportions des ouvertures existantes mais les réinterprète dans une composition plus contemporaine, soulignée par une trame de montants en bois qui lui apporte un côté naturel.

























