LA PANTOUFLE
Surélévation + Rénovation – CAP-FERRET
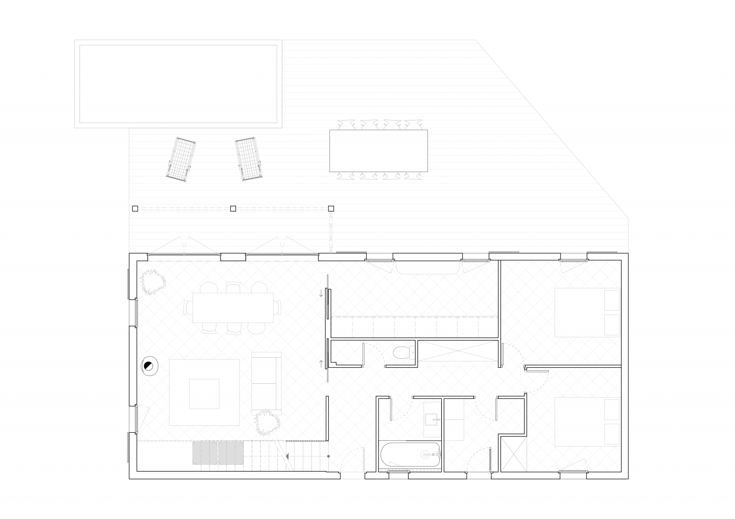
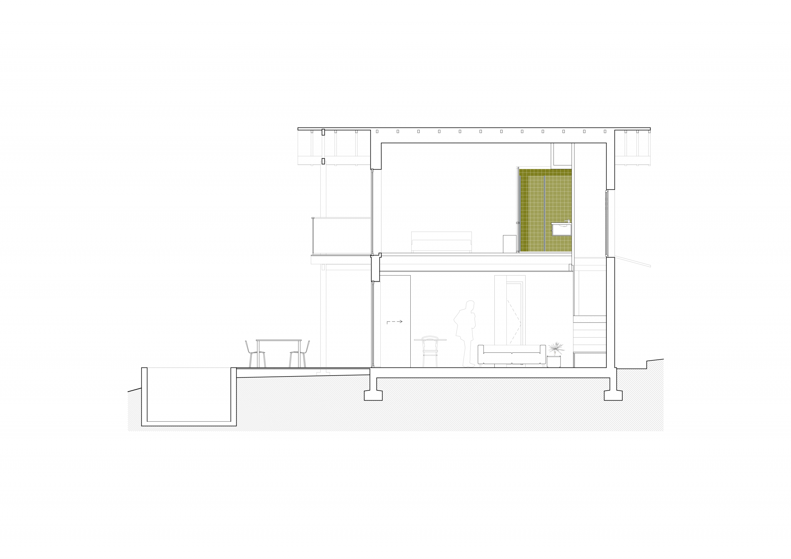
Situé en bordure des Vallons du Cap-Ferret, le projet consiste à surélever partiellement cette maison à ossature bois.
L’objectif du projet est de créer une suite parentale à l’étage et d’agrandir la cuisine. Pour cela le plan du RDC est repensé, une nouvelle entrée vient à la place de la première salle de bain, tandis que la seconde est agrandie.
La nouvelle distribution de la maison nous permet de repenser l’entrée et de mieux tourner le séjour vers la grande Terrasse Ouest.
A l’étage, on retrouve une toilette attenante à la suite parentale. Un grand balcon vient prolonger l’espace vers l’Ouest.
Cette maison est construite en ossature bois, la surélévation vient elle aussi prolonger ce principe constructif. On y retrouve des matériaux biosourcées, dans le but d’augmenter les caractéristiques physiques de la maison. Le confort d’été est içi renforcé.
Phase: Chantier livré en 2023
Surface: 110m2
Budget: 165k
Programme: Logements
Texte en cours
Textes en cours









