FINNS
Extension + Rénovation – CAP-FERRET
Situé dans les vallons du Cap-Ferret, le projet consiste à rajeunir et étendre cette maison de vacances construite dans les années 70.
Celle-ci évolue avec la famille qu’elle accueille. Ajouter une chambre pour gagner de la surface tout en profitant de ce nouveau volume pour adosser la terrasse et l’entrée.
La maison s’agrandit et multiplie surtout ses scénarios d’usage tout en révélant les volumes préexistants. Le séjour se voit rénové, agrandi, se tourne vers ces extérieurs, bardés de bois foncé.
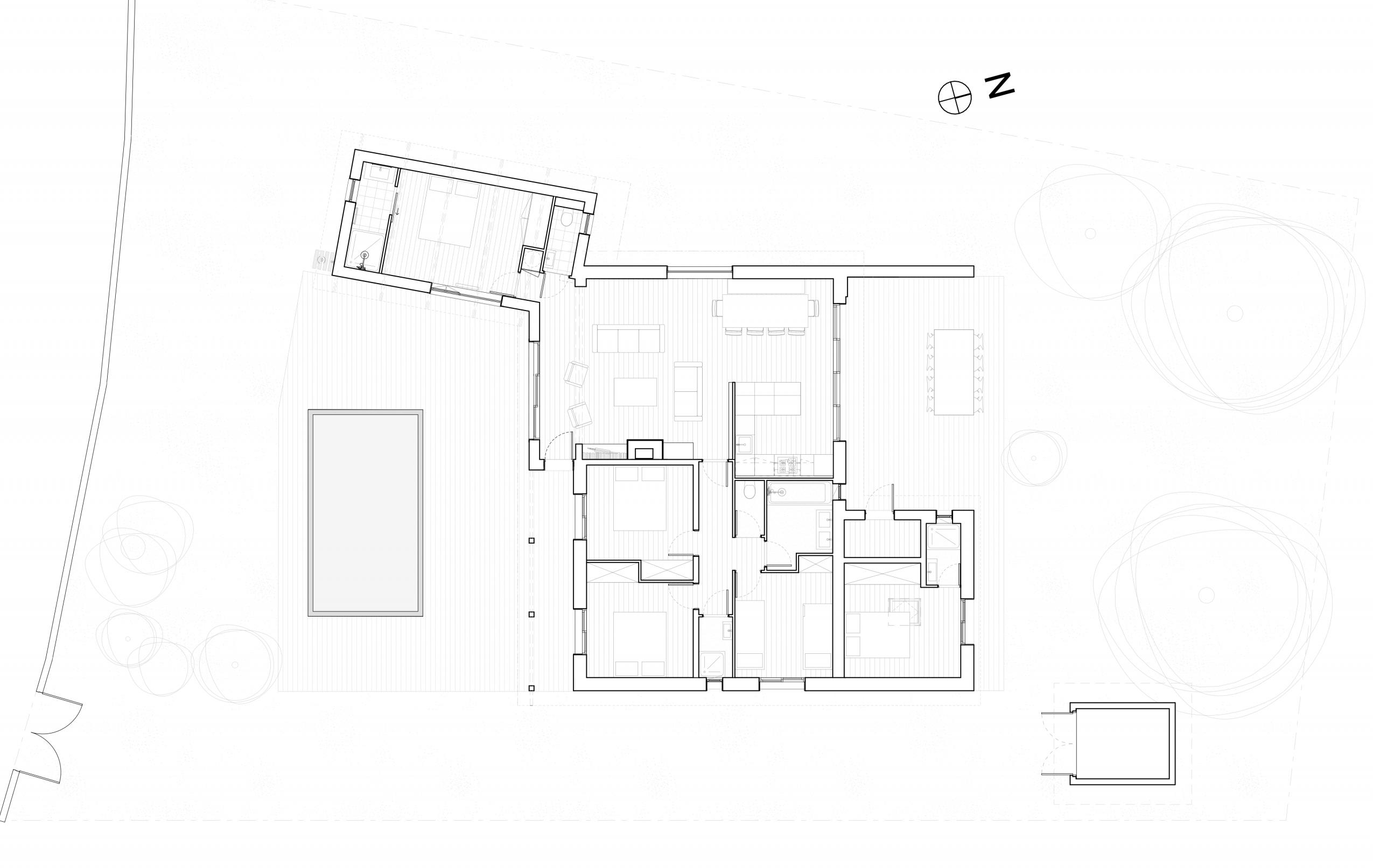
L’extension au Sud vient se rattacher à la maison principale par le séjour. L’extension suit volontairement la parallèle à la limite de propriété afin d’ouvrir l’angle de la terrasse Sud de 10°.
Cette ouverture permet d’agrandir le cadrage du séjour.
Les ouvertures du séjour ont été agrandies au maximum afin de profiter pleinement de l’espace vert au Nord et du soleil au Sud.
Le séjour devient totalement traversant.
Le chantier a été livré début juillet 2022.
Phase: Livré
Surface: 150m2
Budget: 185k
Programme: Logements




















