AUSSY
Rénovation – LE BOUSCAT
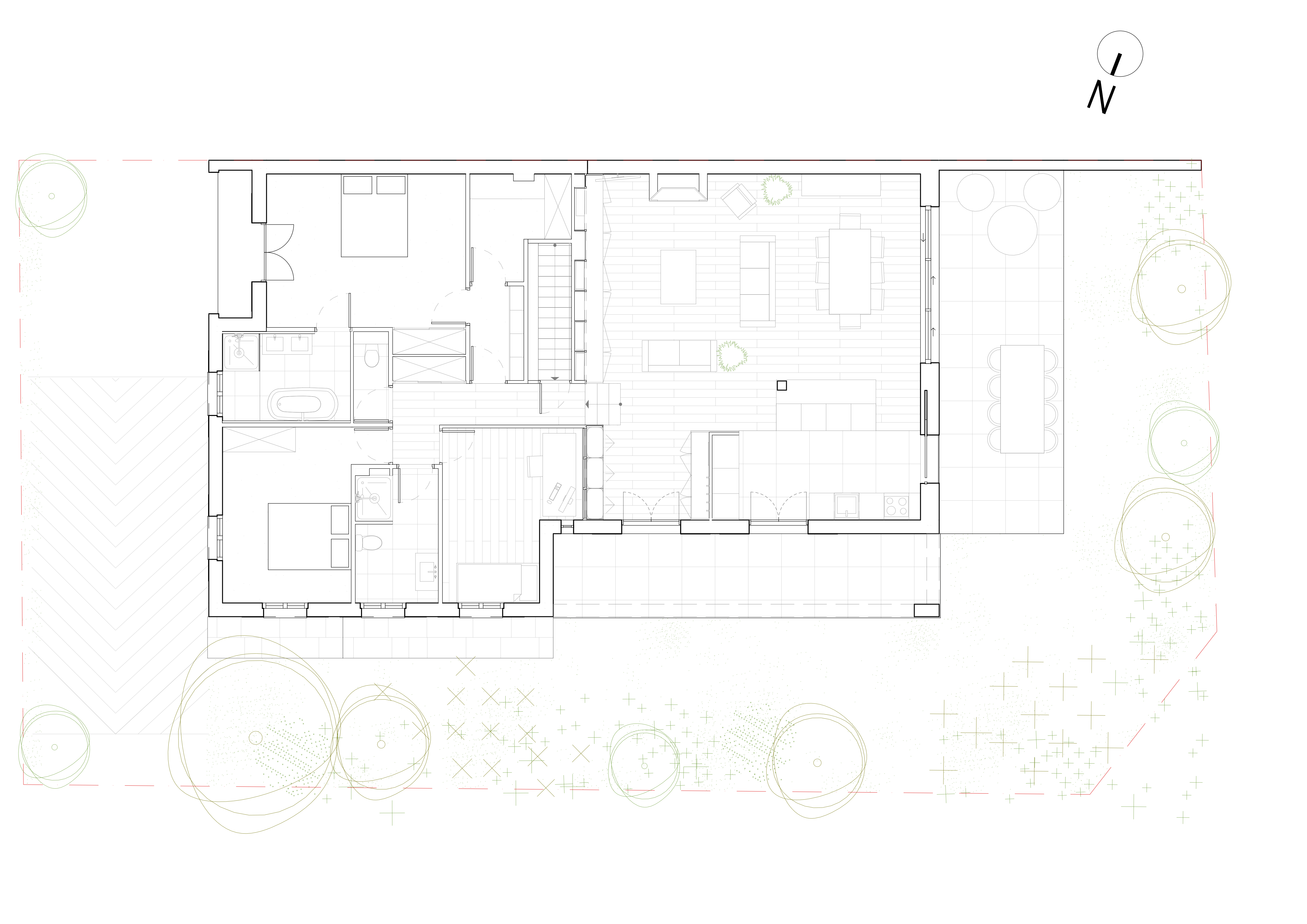
Situé dans le quartier du Bouscat, le projet consiste à réorienter le séjour de cette maison de ville vers son jardin.
Pour cela, une extension préexistante est supprimée, permettant d’ouvrir largement la façade. Le séjour décloisonné devient un véritable lieu de vie. Les éléments de mobiliers structurent l’espace s’anime au rythme de la lumière qui entre par les baies.
La façade recréée reprend les codes de la maison existante. La façade est barder en pierre massive, et le bandeau en bois à été recréé à l’identique. La terrasse carrelée, aux dimensions de l’extension supprimée, permet de tourner le séjour vers l’ouest, de regagner en luminosité.
Le projet a été livré en janvier 2022
Phase: Livré
Surface: 185m2
Budget: 185 k HT
Programme: Logements
Texte en cours
Texte en cours


















